- 新宿 不動産 TOP
- 中古住宅をエリアから探す
- 杉並区
- 松庵
- 杉並区松庵1丁目 中古戸建 2017年築
中古住宅
杉並区松庵1丁目 中古戸建 2017年築
情報更新日:2026/04/21 次回更新予定日:2026/05/05
所在地東京都杉並区松庵1丁目[周辺地図]
交 通京王井の頭線「三鷹台」駅徒歩7分





◆ ◇おすすめPOINT◇ ◆
POINT1. 広々ルーフバルコニー付き物件!外水栓付なのでお手入れも楽々、陽当たり・開放感抜群の憩いのスペースとして利用可能です!
POINT2. 床暖房搭載LDKは隣接する洋室を開放すればより広く、開放的な空間としてお使いいただけます!
POINT3. シューズインクローゼット・パントリーなどの収納豊富な物件なのでスッキリした空間が叶います!
POINT4. 2025年7月にリフォーム済み!中古特有の使用感もなく快適な内装で新生活を開始できます!
◆ ◇ ◆ ◇ ◆ ◇ ◆
POINT1. 広々ルーフバルコニー付き物件!外水栓付なのでお手入れも楽々、陽当たり・開放感抜群の憩いのスペースとして利用可能です!
POINT2. 床暖房搭載LDKは隣接する洋室を開放すればより広く、開放的な空間としてお使いいただけます!
POINT3. シューズインクローゼット・パントリーなどの収納豊富な物件なのでスッキリした空間が叶います!
POINT4. 2025年7月にリフォーム済み!中古特有の使用感もなく快適な内装で新生活を開始できます!
◆ ◇ ◆ ◇ ◆ ◇ ◆
- すべて(36)
- 外観・パース(13)
- 内観(21)
- 間取・区画(1)
- その他(0)
- 動画
すべての画像
担当スタッフより
- 物件担当より
- 京王井の頭線「三鷹台」駅徒歩7分の場所にある閑静な文教地区住宅街に佇むルーフバルコニー付き中古戸建が販売開始!
外水栓付でお手入れも簡単なルーフバルコニーは陽当たり・通風良好、開放感抜群!お子様の遊び場や憩いのスペースとして利用可能です!
床暖房搭載LDKは隣接する洋室を開放すればより広くお使いいただけます!
全室南向き2面採光の居室は陽当たり・通風良好、全室5.7帖以上なので個々のスペースも開放的な空間となっております!
シューズインクローゼットやパントリーなどの収納も豊富な物件ですので、いつでもスッキリした空間が叶います!
2025年7月にリフォーム済みですので中古特有の使用感もない内装で新生活を開始できます!
物件周辺は小学校徒歩11分・中学校徒歩14分・保育園が徒歩1分と教育施設、特に保育園が至近距離にある環境となっています!
物件詳細や現地ご案内希望など、お気軽にお問い合わせください!
【フリーダイヤル:0120-76-1177】お待ちしております!
物件詳細情報
物件No.20000420620
| 所在地 | 東京都杉並区松庵1丁目 | ||
|---|---|---|---|
| 交通 | 京王井の頭線「三鷹台」駅徒歩7分 | ||
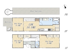
| 間取 | 3LDK+SIC+pantry+ルーフバルコニー (LDK10.5帖、洋室9.6帖、洋室6.4帖、洋室5.7帖) | ||
| 土地面積 | 90.98m² 公簿 | ||
| 建物面積 | 86.72m² 公簿 | ||
| 構造・規模 | 木造 2階建て | 築年月 | 2017年2月築 |
| バルコニー | 西向き | 地目 | 宅地 |
| 用途地域 | 第一種低層住居専用地域 | 建ぺい率 | 50%/60% |
| 容積率 | 100% | 都市計画 | 市街化区域 |
| 駐車スペース | あり | 現況 | 空家 |
| 引渡時期 | 即引渡可 | 権利種類 | 所有権 |
| 接道 | 西側6.3M公道に接道 南側4M道路に接道 東側4M道路に接道 |
小学校区 | 杉並区立松庵小学校(700m) |
| 中学校区 | 杉並区立西宮中学校(1000m) | 取引態様 | 媒介 |
| 設備 | 公営水道、本下水、都市ガス | ||
| その他制限事項 | 高度地区、準防火地域、日影制限有 | ||
こだわり項目
平坦地緑豊かな住宅地閑静な住宅地前面棟無地盤調査済南側道路リフォーム済み南向き全室南向き全室2面採光床下収納ワイドバルコニー2面以上バルコニー複層ガラス床暖房食器洗浄機浄水器ガスコンロシステムキッチン3口以上コンロパントリー(食器・食品の収納庫)トイレ2ヶ所温水洗浄便座シャワー付洗面台浴室乾燥機浴室暖房追焚機能浴室1坪以上浴室に窓オートバス全居室フローリングリビング階段シューズインクローゼットバリアフリー仕様TVモニタ付インターホン24時間換気システム小学校800m以内保育園・幼稚園800m以内公園800m以内陽当り良好
- ※価格は物件の代金総額を表示しており、消費税が課税される場合は税込み価格です。(1,000円未満は切り上げ。)
税率は引き渡し時期により異なりますので、各物件の詳細につきましてはお問い合わせください。 - ※敷地権利が借地権のものは価格に権利金を含みます。
- ※制作中に内容が変更される場合もありますので、あらかじめご了承ください。
- ※購入の前には物件内容や契約条件についてご自身で十分な確認をしていただくようにお願いいたします。
- ※完成予想図はいずれも外構、植栽、外観等実際のものとは多少異なることがあります。
- ※CG合成の画像の場合、実際とは多少異なる場合があります。
周辺地図
周辺施設一覧
- ショッピングセンター
- スーパー
- コンビニ
- ドラッグストア
- ホームセンター
- 飲食店
- その他店舗
- 商店街
- 大学
- 専門学校
- 高校・高専
- 中学校
- 小学校
- 保育園
- 幼稚園
- 公民館・児童館
- 病院
- 郵便局
- 役所
- 図書館
- 金融機関
- 警察・消防
- 趣味・娯楽施設
- 公園・運動施設
- 周辺の街並み
- 駅
- その他
お問い合せ先
- リプラス株式会社
- お電話でのお問い合わせは
0120-76-1177「ホームページを見た」とお問い合わせください - 東京都渋谷区本町3-13-12 渋谷本町ビル 7F
- 営業時間:AM9:00〜PM8:00
- 定休日:毎週水曜日
- 免許番号:東京都知事(1) 第110445号
- 新宿 不動産 TOP
- 中古住宅をエリアから探す
- 杉並区
- 松庵
- 杉並区松庵1丁目 中古戸建 2017年築































