- 新宿 不動産 TOP
- 中古住宅をエリアから探す
- 世田谷区
- 北沢
- 世田谷区北沢1丁目 リフォーム中古戸建 2023年築
世田谷区北沢1丁目 リフォーム中古戸建 2023年築
情報更新日:2026/05/18 次回更新予定日:2026/06/01
所在地東京都世田谷区北沢1丁目[周辺地図]
交 通京王井の頭線「池ノ上」駅徒歩4分





2023年築浅物件!「ozi design works」監修 新規内装デザインリフォーム物件!
物件詳細や現地ご案内希望など、お気軽にお問い合わせください!
◆ ◇おすすめPOINT◇ ◆
POINT1. 井の頭線「池ノ上」駅徒歩4分、小田急線「東北沢」駅徒歩5分、「下北沢」駅徒歩10分で利用可能な希少立地!
POINT2. 2023年築浅戸建の新耐震基準物件となっており、地震に強い邸宅で永く安心して暮らせる住まい!
POINT3. LDK19帖+4部屋の広々としたファミリープラン!食洗機や浴室乾燥機など設備仕様も豊富で過ごしやすい邸宅!
~リフォーム内容~2025年4月下旬完工
・キッチン・ユニットバス・トイレ・洗面台・給湯器
・フローリング・フロアタイル・壁、天井クロス張替
・各部屋AC先行配管・インターホン交換
すべての画像
【Balcony:2階】
【前面道路】
【前面道路】
【Kitchen】
【Kitchen】あると便利な食洗器搭載キッチン。手洗いの時間や労力を大幅に削減でき、家事の効率化が図れ、空いた時間に他の作業やのんびり家族との時間が増えます。
【Wash Room】
【Wash Room】機能美とデザイン性を両立させた3面境仕上げの洗面化粧台。視覚的に広がり感を持たせるだけでなく、機能的にも優れています。
【Bath Room】
【Bath Room】浴室乾燥機付きバスルーム。雨の日や花粉の季節などでも衣類の乾燥もできて便利です!
【Toilet】
【Toilet】トイレ内に洗面台が備わっており、清潔感を保ちやすくなります。
【TVモニター付インターフォン】
【TVモニター付インターフォン】来客時に誰が来たかをモニターで確認できるので、防犯に繋がります。
担当スタッフより
- 物件担当より
- 【見学予約受付中】
井の頭線「池ノ上」駅徒歩4分、小田急線「東北沢」駅徒歩5分、「下北沢」駅徒歩10分で利用可能な希少立地に佇む邸宅が誕生!
2023年築浅物件!内装デザインリフォーム済みで新築のようなキレイな状態で引き渡し可能!
幼稚園や保育園、小中学校など教育施設が徒歩13分圏内にあり、共働きの子育て世帯でも安心して暮らせます!
スーパーやコンビニなど商業施設も徒歩5分圏内にあり、日々のお買い物や休日のまとめ買いなども行き来しやすい距離で便利な住環境です!
物件詳細や現地ご案内希望など、お気軽にお問い合わせください!
【フリーダイヤル:0120-76-1177】お待ちしております!
物件詳細情報
物件No.20000429938
| 所在地 | 東京都世田谷区北沢1丁目 | ||
|---|---|---|---|
| 交通 | 京王井の頭線「池ノ上」駅徒歩4分 小田急小田原線「東北沢」駅徒歩5分 小田急小田原線「下北沢」駅徒歩10分 |
||
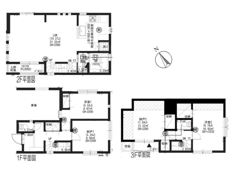
| 間取 | 2LDK+2S+ビルトインガレージ (LDK19.27帖、洋室6.74帖、洋室5.53帖、S7.54帖、S5.24帖) | ||
| 土地面積 | 62.12m² 公簿 | ||
| 建物面積 | 99.04m² 公簿 | ||
| 構造・規模 | 木造 3階建て | 築年月 | 2023年11月築 |
| バルコニー | 南向き | 地目 | 宅地 |
| 用途地域 | 第一種住居地域 | 建ぺい率 | 60% |
| 容積率 | 200% | 都市計画 | 市街化区域 |
| 駐車スペース | 1台 | 現況 | 空家 |
| 引渡時期 | 即引渡可 | 権利種類 | 所有権 |
| 接道 | 北西側4M道路に接道 | 小学校区 | 世田谷区立池之上小学校(350m) |
| 中学校区 | 世田谷区立富士中学校(1000m) | 取引態様 | 媒介 |
| リフォーム |
|
||
| 設備 | 公営水道、本下水、都市ガス | ||
| その他制限事項 | 高度地区 | ||
こだわり項目
- ※価格は物件の代金総額を表示しており、消費税が課税される場合は税込み価格です。(1,000円未満は切り上げ。)
税率は引き渡し時期により異なりますので、各物件の詳細につきましてはお問い合わせください。 - ※敷地権利が借地権のものは価格に権利金を含みます。
- ※制作中に内容が変更される場合もありますので、あらかじめご了承ください。
- ※購入の前には物件内容や契約条件についてご自身で十分な確認をしていただくようにお願いいたします。
- ※完成予想図はいずれも外構、植栽、外観等実際のものとは多少異なることがあります。
- ※CG合成の画像の場合、実際とは多少異なる場合があります。
周辺地図
周辺施設一覧
- ショッピングセンター
- スーパー
- コンビニ
- ドラッグストア
- ホームセンター
- 飲食店
- その他店舗
- 商店街
- 大学
- 専門学校
- 高校・高専
- 中学校
- 小学校
- 保育園
- 幼稚園
- 公民館・児童館
- 病院
- 郵便局
- 役所
- 図書館
- 金融機関
- 警察・消防
- 趣味・娯楽施設
- 公園・運動施設
- 周辺の街並み
- 駅
- その他
お問い合せ先
- リプラス株式会社
- お電話でのお問い合わせは
0120-76-1177「ホームページを見た」とお問い合わせください - 東京都渋谷区本町3-13-12 渋谷本町ビル 7F
- 営業時間:AM9:00〜PM8:00
- 定休日:毎週水曜日
- 免許番号:東京都知事(1) 第110445号
- 新宿 不動産 TOP
- 中古住宅をエリアから探す
- 世田谷区
- 北沢
- 世田谷区北沢1丁目 リフォーム中古戸建 2023年築



























