- 新宿 不動産 TOP
- 中古住宅をエリアから探す
- 練馬区
- 春日町
- 練馬区春日町1丁目 リフォーム中古戸建
練馬区春日町1丁目 リフォーム中古戸建
情報更新日:2026/05/07 次回更新予定日:2026/05/21
所在地東京都練馬区春日町1丁目[周辺地図]
交 通都営大江戸線「練馬春日町」駅徒歩7分





POINT1. 都営大江戸線「練馬区春日町」駅徒歩7分、西武豊島線「豊島園」駅徒歩13分の立地!
POINT2. 一部屋がゆとりある広さを持つ4SLDKプラン。13.5帖のLDKはトップライトがより開放的で過ごしやすい空間を創り出します。
POINT3. 2025年12月リフォーム完工!水回りや内装など、中古特有の使用感なく快適にお使いいただけます!
POINT4. 物件周辺はコンビニ徒歩1分、スーパー徒歩6分と買い物施設が利用しやすい徒歩圏内に点在している暮らしやすい住環境!
POINT5. 保育園徒歩4分、幼稚園徒歩5分、小学校徒歩6分とお子様の送り迎えや通学も安心の距離に教育施設が揃っています!
◆ ◇ ◆ ◇ ◆ ◇ ◆
- すべて(34)
- 外観・パース(11)
- 内観(22)
- 間取・区画(1)
- その他(0)
- 動画
すべての画像
【外観】 都営大江戸線「練馬春日町」駅まで徒歩7分の立地に佇む、街並みに溶け込む、温かみのある外観。都会的な暮らしと安らぎが調和する、心地よい空間がここから始まります。
【LDK:13.5帖】 4SLDKのファミリープラン。将来、子供一人ひとりに部屋を与えることもできます。 真っ白な壁と明るい木目の床が、清々しく広々とした印象を与え、穏やかな日常を予感させる空間です。
【Kitchen】 食洗器搭載システムキッチン。 清潔感あふれる空間に、木目の温もりを感じる床が心地よく調和した、穏やかな日々を過ごせる空間。
【Room:6帖】 壁一面に広がる大きな窓から、心地よい光が降り注ぎ、空間全体を柔らかな表情に。勾配天井と相まって、開放感あふれる住まい。
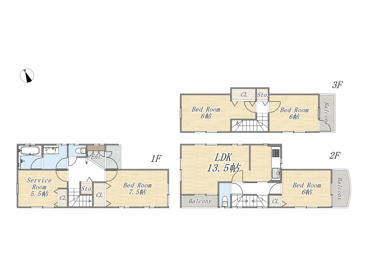
【間取り図】4SLDK+カースペース
【外観】
【LDK:13.5帖】
【LDK:13.5帖】
担当スタッフより
- 物件担当より
- 【見学予約受付中】
2025年12月リフォーム完工!ご内覧可能です!
都営大江戸線「練馬区春日町」駅徒歩7分、西武豊島線「豊島園」駅徒歩13分の立地にリフォーム済み中古戸建が販売開始!
一部屋5.2帖以上、ご家族で暮らしやすいゆとりある広さを持つ4SLDKプラン。
13.5帖のLDKは2階リビング仕様でプライバシーを確保、トップライトがより開放的でくつろぎやすい空間を創り出します。
バルコニーが3面あるので、実用や趣味、憩いのスペースと用途を分けた利用が可能!
物件周辺はコンビニ徒歩1分、スーパー徒歩6分と買い物施設が利用しやすい徒歩圏内に点在している暮らしやすい住環境!
保育園徒歩4分、幼稚園徒歩5分、小学校徒歩6分とお子様の送り迎えや通学も安心の距離に教育施設が揃っているので子育て世帯も安心の環境です。
物件詳細や現地ご案内希望など、お気軽にお問い合わせください!
【本店フリーダイヤル:0120-76-1177】お待ちしております!
物件詳細情報
物件No.20000447490
| 所在地 | 東京都練馬区春日町1丁目 | ||
|---|---|---|---|
| 交通 | 都営大江戸線「練馬春日町」駅徒歩7分 西武豊島線「豊島園」駅徒歩13分 |
||
| 間取 | 4SLDK+カースペース (LDK13.5帖、洋室7.5帖、洋室6帖、洋室6帖、洋室6帖、S5.5帖) | ||
| 土地面積 | 81.48m² | ||
| 建物面積 | 100.53m² | ||
| 構造・規模 | 木造 2階建て | 築年月 | 2001年2月築 |
| バルコニー | 東向き | 地目 | 宅地 |
| 用途地域 | 第一種住居地域 | 建ぺい率 | 60% |
| 容積率 | 300% | 都市計画 | 市街化区域 |
| 駐車スペース | 1台(カースペース) | 現況 | 空家 |
| 引渡時期 | 即引渡可 | 権利種類 | 所有権 |
| 接道 | 東側5M公道に接道 | 小学校区 | 練馬区立練馬東小学校(450m) |
| 中学校区 | 練馬区立練馬東中学校(1000m) | 取引態様 | 媒介 |
| リフォーム |
|
||
| 設備 | 公営水道、本下水、都市ガス | ||
こだわり項目
- ※価格は物件の代金総額を表示しており、消費税が課税される場合は税込み価格です。(1,000円未満は切り上げ。)
税率は引き渡し時期により異なりますので、各物件の詳細につきましてはお問い合わせください。 - ※敷地権利が借地権のものは価格に権利金を含みます。
- ※制作中に内容が変更される場合もありますので、あらかじめご了承ください。
- ※購入の前には物件内容や契約条件についてご自身で十分な確認をしていただくようにお願いいたします。
- ※完成予想図はいずれも外構、植栽、外観等実際のものとは多少異なることがあります。
- ※CG合成の画像の場合、実際とは多少異なる場合があります。
周辺地図
周辺施設一覧
- ショッピングセンター
- スーパー
- コンビニ
- ドラッグストア
- ホームセンター
- 飲食店
- その他店舗
- 商店街
- 大学
- 専門学校
- 高校・高専
- 中学校
- 小学校
- 保育園
- 幼稚園
- 公民館・児童館
- 病院
- 郵便局
- 役所
- 図書館
- 金融機関
- 警察・消防
- 趣味・娯楽施設
- 公園・運動施設
- 周辺の街並み
- 駅
- その他
お問い合せ先
- リプラス株式会社
- お電話でのお問い合わせは
0120-76-1177「ホームページを見た」とお問い合わせください - 東京都渋谷区本町3-13-12 渋谷本町ビル 7F
- 営業時間:AM9:00〜PM8:00
- 定休日:毎週水曜日
- 免許番号:東京都知事(1) 第110445号
- 新宿 不動産 TOP
- 中古住宅をエリアから探す
- 練馬区
- 春日町
- 練馬区春日町1丁目 リフォーム中古戸建




























