- 新宿 不動産 TOP
- 新築一戸建てをエリアから探す
- 練馬区
- 石神井台
- 2号棟 練馬区石神井台3丁目 新築分譲住宅 全3棟
新築一戸建て
2号棟 練馬区石神井台3丁目 新築分譲住宅 全3棟
情報更新日:2026/04/13 次回更新予定日:2026/04/26
所在地東京都練馬区石神井台3丁目[周辺地図]
交 通西武池袋線「大泉学園」駅徒歩15分



◆ ◇おすすめポイント◇ ◆
◆ 西武池袋線「大泉学園」駅まで徒歩15分の立地!
◆ LDK17帖超えの3SLDK+WIC+カースペースの間取りプラン!
◆ 食洗機・浴室暖房換気乾燥機・浄水器などの充実した設備仕様!
~学区~
◎ 石神井北小学校 徒歩7分
◎ 石神井中学校 徒歩10分
物件詳細や現地ご案内など、お気軽にお問い合わせください!
◆ 西武池袋線「大泉学園」駅まで徒歩15分の立地!
◆ LDK17帖超えの3SLDK+WIC+カースペースの間取りプラン!
◆ 食洗機・浴室暖房換気乾燥機・浄水器などの充実した設備仕様!
~学区~
◎ 石神井北小学校 徒歩7分
◎ 石神井中学校 徒歩10分
物件詳細や現地ご案内など、お気軽にお問い合わせください!
担当スタッフより
- 物件担当より
- 西武池袋線「大泉学園」駅まで徒歩15分の立地!
LDK17帖超×4部屋のファミリープラン!ウォークインクローゼットがあ設けられ、収納スペース抜群◎
食洗機・浴室暖房換気乾燥機・浄水器などの充実した設備仕様の住まい!
物件詳細や現地ご案内希望など、お気軽にお問い合わせください!
【府中支店フリーダイヤル:0120-91-6997】お待ちしております!
各棟情報
物件詳細情報
物件No.20000443134-002
| 所在地 | 東京都練馬区石神井台3丁目 | ||
|---|---|---|---|
| 交通 | 西武池袋線「大泉学園」駅徒歩15分 | ||
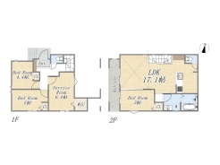
| 間取 | 3SLDK+WIC+カースペース (LDK17.1帖、洋室5帖、洋室5帖、洋室4.4帖、S6.4帖) | ||
| 土地面積 | 78.99m² 実測 | ||
| 建物面積 | 99.41m² 実測 | ||
| 販売戸数 | 2戸 | 総戸数 | 全3戸 |
| 構造・規模 | 木造 2階建て | 築年・入居 | 2026年5月下旬 |
| バルコニー | 南西向き | 建物現況 | 建築中 |
| 建築確認番号 | 第BNV確済25-946号 | 駐車スペース | 1台(カースペース) |
| 引渡時期 | 期日指定有(2026年6月下旬) | 地目 | 宅地 |
| 用途地域 | 第一種住居地域 | 建ぺい率 | 60% |
| 容積率 | 300% | 都市計画 | 市街化区域 |
| 権利種類 | 所有権 | 接道 | 西側8.2M公道に接道 北側4M公道に接道 |
| 小学校区 | 練馬区立上石神井北小学校(500m) | 中学校区 | 練馬区立石神井中学校(750m) |
| 取引態様 | 媒介 | ||
| 設備 | 公営水道、本下水、都市ガス | ||
| その他制限事項 | 高度地区、防火地域 | ||
こだわり項目
始発駅区画整理及び分譲地角地整形地平坦地緑豊かな住宅地閑静な住宅地前面棟無地盤調査済LDK15帖以上南向き全居室収納吹抜け複層ガラス食器洗浄機浄水器省エネ給湯器ガスコンロシステムキッチンカウンターキッチン3口以上コンロトイレ2ヶ所温水洗浄便座節水型トイレシャワー付洗面台浴室乾燥機浴室暖房追焚機能浴室1坪以上オートバス天井高2.5M以上全居室フローリングリビング階段ウォークインクローゼットバリアフリー仕様TVモニタ付インターホンビルトガレージ24時間換気システム小学校800m以内保育園・幼稚園800m以内スーパー400m以内コンビニ400m以内公園800m以内陽当り良好通風良好
- ※価格は物件の代金総額を表示しており、消費税が課税される場合は税込み価格です。(1,000円未満は切り上げ。)
税率は引き渡し時期により異なりますので、各物件の詳細につきましてはお問い合わせください。 - ※敷地権利が借地権のものは価格に権利金を含みます。
- ※制作中に内容が変更される場合もありますので、あらかじめご了承ください。
- ※購入の前には物件内容や契約条件についてご自身で十分な確認をしていただくようにお願いいたします。
- ※完成予想図はいずれも外構、植栽、外観等実際のものとは多少異なることがあります。
- ※CG合成の画像の場合、実際とは多少異なる場合があります。
周辺地図
周辺施設一覧
- ショッピングセンター
- スーパー
- コンビニ
- ドラッグストア
- ホームセンター
- 飲食店
- その他店舗
- 商店街
- 大学
- 専門学校
- 高校・高専
- 中学校
- 小学校
- 保育園
- 幼稚園
- 公民館・児童館
- 病院
- 郵便局
- 役所
- 図書館
- 金融機関
- 警察・消防
- 趣味・娯楽施設
- 公園・運動施設
- 周辺の街並み
- 駅
- その他
お問い合せ先
- リプラス株式会社
- お電話でのお問い合わせは
0120-76-1177「ホームページを見た」とお問い合わせください - 東京都渋谷区本町3-13-12 渋谷本町ビル 7F
- 営業時間:AM9:00〜PM8:00
- 定休日:毎週水曜日
- 免許番号:東京都知事(1) 第110445号
- 新宿 不動産 TOP
- 新築一戸建てをエリアから探す
- 練馬区
- 石神井台
- 2号棟 練馬区石神井台3丁目 新築分譲住宅 全3棟








