- 新宿 不動産 TOP
- 新築一戸建てをエリアから探す
- 江戸川区
- 鹿骨
- 江戸川区鹿骨1丁目 新築分譲住宅 全3棟
新築一戸建て
江戸川区鹿骨1丁目 新築分譲住宅 全3棟
情報更新日:2026/02/16 次回更新予定日:2026/02/22 取引条件有効期限:2026/02/22
所在地東京都江戸川区鹿骨1丁目[周辺地図]
交 通都営新宿線「篠崎」駅徒歩22分





◆ ◇おすすめポイント◇ ◆
◆ 都営新宿線「篠崎」駅まで徒歩22分の立地!
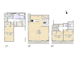
◆ LDK20帖超えの3LDK+WIC+カースペースの間取りプラン!
◆ 食洗機・浴室暖房換気乾燥機・浄水器などの充実した設備仕様!
~学区~
◎ 鹿骨松本小学校 徒歩10分
◎ 鹿骨中学校 徒歩9分
物件詳細や現地ご案内など、お気軽にお問い合わせください!
◆ 都営新宿線「篠崎」駅まで徒歩22分の立地!
◆ LDK20帖超えの3LDK+WIC+カースペースの間取りプラン!
◆ 食洗機・浴室暖房換気乾燥機・浄水器などの充実した設備仕様!
~学区~
◎ 鹿骨松本小学校 徒歩10分
◎ 鹿骨中学校 徒歩9分
物件詳細や現地ご案内など、お気軽にお問い合わせください!
- すべて(16)
- 外観・パース(10)
- 内観(0)
- 間取・区画(6)
- その他(0)
- 動画
担当スタッフより
- 物件担当より
- 都営新宿線「篠崎」駅が利用可能な立地!
断熱・省エネ性能に優れたZEH水準仕様住宅!全棟LDK19.4帖超えの広々プラン!
床暖房が搭載されたリビングルームは家族憩いの場となりそうです。
小中学校が徒歩10分圏内に点在している子育て世帯にも安心の立地です!
お気軽にお問い合わせください!
【フリーダイヤル:0120-76-1177】お待ちしております!
各棟情報
物件詳細情報
物件No.20000424522
| 所在地 | 東京都江戸川区鹿骨1丁目 | ||
|---|---|---|---|
| 交通 | 都営新宿線「篠崎」駅徒歩22分 都営新宿線「篠崎」駅バス6分 バス停「鹿骨」停歩7分 |
||
| 間取 | 3LDK~3SLDK | ||
| 土地面積 | 74.32m² ~ 85.01m² 実測 | ||
| 建物面積 | 119.57m² ~ 127.66m² 実測 | ||
| 販売戸数 | 2戸 | 総戸数 | 全3戸 |
| 構造・規模 | 木造 3階建て | 築年・入居 | 2026年1月中旬 |
| 建物現況 | 建築中 | 建築確認番号 | 第KBI-YKH25-10-1774、他 |
| 駐車スペース | 1台(カーポート) | 引渡時期 | 相談 |
| 地目 | 宅地 | 用途地域 | 第一種中高層住居専用地域 |
| 建ぺい率 | 70%/80% | 容積率 | 150% |
| 都市計画 | 市街化区域 | 権利種類 | 所有権 |
| 接道 | 西側8.6M公道に接道 南側5M公道に接道 |
小学校区 | 鹿骨松本小学校(800m) |
| 中学校区 | 鹿骨中学校(650m) | 取引態様 | 媒介 |
| 設備 | 公営水道、本下水、都市ガス | ||
| 備考・制限等 | 準防火地域・日影規制・第二種高度地区・江戸川東部篠崎付近土地区画整理事業(すべき区域) | ||
こだわり項目
区画整理及び分譲地整形地平坦地閑静な住宅地前面棟無地盤調査済南側道路LDK15帖以上省エネ・エコ住宅BELS/省エネ基準適合(認定書あり)南向き全室2面採光床下収納全居室収納複層ガラス床暖房食器洗浄機浄水器省エネ給湯器ガスコンロシステムキッチンカウンターキッチン3口以上コンロトイレ2ヶ所温水洗浄便座節水型トイレシャワー付洗面台浴室乾燥機浴室暖房追焚機能浴室1坪以上浴室に窓オートバス全居室フローリングリビング階段ウォークインクローゼットバリアフリー仕様TVモニタ付インターホンビルトガレージ24時間換気システム小学校800m以内保育園・幼稚園800m以内コンビニ400m以内公園800m以内陽当り良好通風良好フラット35Sに対応
- ※価格は物件の代金総額を表示しており、消費税が課税される場合は税込み価格です。(1,000円未満は切り上げ。)
税率は引き渡し時期により異なりますので、各物件の詳細につきましてはお問い合わせください。 - ※敷地権利が借地権のものは価格に権利金を含みます。
- ※制作中に内容が変更される場合もありますので、あらかじめご了承ください。
- ※購入の前には物件内容や契約条件についてご自身で十分な確認をしていただくようにお願いいたします。
- ※完成予想図はいずれも外構、植栽、外観等実際のものとは多少異なることがあります。
- ※CG合成の画像の場合、実際とは多少異なる場合があります。
周辺地図
周辺施設一覧
- ショッピングセンター
- スーパー
- コンビニ
- ドラッグストア
- ホームセンター
- 飲食店
- その他店舗
- 商店街
- 大学
- 専門学校
- 高校・高専
- 中学校
- 小学校
- 保育園
- 幼稚園
- 公民館・児童館
- 病院
- 郵便局
- 役所
- 図書館
- 金融機関
- 警察・消防
- 趣味・娯楽施設
- 公園・運動施設
- 周辺の街並み
- 駅
- その他
お問い合せ先
- リプラス株式会社
- お電話でのお問い合わせは
0120-76-1177「ホームページを見た」とお問い合わせください - 東京都渋谷区本町3-13-12 渋谷本町ビル 7F
- 営業時間:AM9:00〜PM8:00
- 定休日:毎週水曜日
- 免許番号:東京都知事(1) 第110445号
- 新宿 不動産 TOP
- 新築一戸建てをエリアから探す
- 江戸川区
- 鹿骨
- 江戸川区鹿骨1丁目 新築分譲住宅 全3棟














