- 新宿 不動産 TOP
- 新築一戸建てをエリアから探す
- 練馬区
- 貫井
- 2号棟 練馬区貫井3丁目 新築分譲住宅 全2棟
新築一戸建て
2号棟 練馬区貫井3丁目 新築分譲住宅 全2棟
情報更新日:2025/12/03 次回更新予定日:2025/12/17
所在地東京都練馬区貫井3丁目[周辺地図]
交 通西武池袋線「富士見台」駅徒歩9分





◆ ◇おすすめPOINT◇ ◆
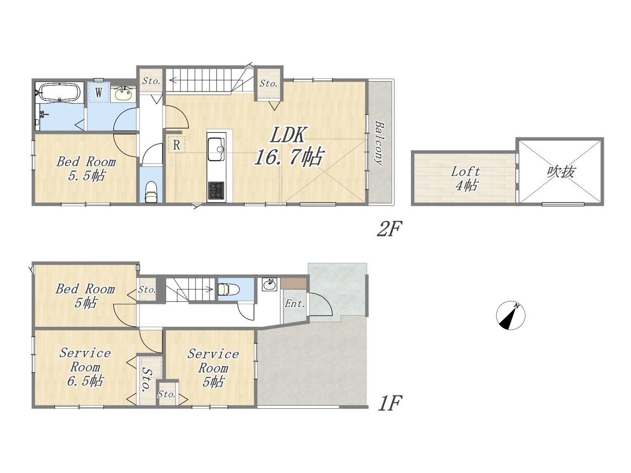
POINT1. LDK16.7帖以上!3面採光と吹抜がさらに開放感溢れる空間を演出しています!2階なのでプライバシーも守れます!
POINT2. スペースを無駄にしないロフト付き物件!収納としてはもちろん、お客様次第で様々な使い方ができます!
POINT3. ビルトインガレージでお車も汚れずお車での移動もより快適にスムーズになります!
POINT4. 小学校・中学校が徒歩7分圏内!お子様の足でも安心して通える距離にあります!
◆ ◇ ◆ ◇ ◆ ◇ ◆
各棟の情報をクリックすると詳細や写真をより見ることができます!
POINT1. LDK16.7帖以上!3面採光と吹抜がさらに開放感溢れる空間を演出しています!2階なのでプライバシーも守れます!
POINT2. スペースを無駄にしないロフト付き物件!収納としてはもちろん、お客様次第で様々な使い方ができます!
POINT3. ビルトインガレージでお車も汚れずお車での移動もより快適にスムーズになります!
POINT4. 小学校・中学校が徒歩7分圏内!お子様の足でも安心して通える距離にあります!
◆ ◇ ◆ ◇ ◆ ◇ ◆
各棟の情報をクリックすると詳細や写真をより見ることができます!
担当スタッフより
- 物件担当より
- 西武池袋線「富士見台」駅まで徒歩9分!小中学校まで徒歩10分圏内!スーパー・コンビニ徒歩7分圏内!農産物直売所が近所にある暮らしやすい環境に立地している物件です。
プライバシーを守れる2階リビングは16.7帖以上、3面採光と吹抜で開放感溢れる空間となっています。
カウンターキッチンとリビング階段設計でコミュニケーションを重視した造りとなっており、ロフトとリビング収納でいつでもすっきりと片付いた空間が叶います。
ロフトは収納以外でも様々な使い方ができますので、お客様の理想の生活に合わせてご利用になれます。
駐車スペースはビルトインガレージなのでお車が汚れにくく、雨の日でもお車での移動の準備がしやすくなっています。
物件詳細や現地ご案内希望など、お気軽にお問い合わせください!
【☎フリーダイヤル:0120-76-1177】お待ちしております!
各棟情報
物件詳細情報
物件No.20000405751-002
| 所在地 | 東京都練馬区貫井3丁目 | ||
|---|---|---|---|
| 交通 | 西武池袋線「富士見台」駅徒歩9分 | ||
| 間取 | 2LDK+2S+ロフト+ビルトインガレージ (LDK16.7帖、洋室5.5帖、洋室5帖、S6.5帖、S5帖) | ||
| 土地面積 | 93.02m² 実測 | ||
| 建物面積 | 103.8m² 実測 | ||
| 販売戸数 | 2戸 | 総戸数 | 全2戸 |
| 構造・規模 | 木造 2階建て | 築年・入居 | 2025年8月上旬 |
| バルコニー | 東向き | 建物現況 | 完成済 |
| 建築確認番号 | 第24UDI1W建10926号 | 駐車スペース | 1台(車庫) |
| 引渡時期 | 即引渡可 | 地目 | 宅地 |
| 用途地域 | 第一種低層住居専用地域 | 建ぺい率 | 50%/60% |
| 容積率 | 100% | 都市計画 | 市街化区域 |
| 権利種類 | 所有権 | 接道 | 東側4M公道に接道 |
| 小学校区 | 練馬区立練馬第二小学校(550m) | 中学校区 | 練馬区立貫井中学校(550m) |
| 取引態様 | 媒介 | ||
| 設備 | 公営水道、本下水、都市ガス | ||
| その他制限事項 | 高度地区、準防火地域 | ||
| 備考・制限等 | ☆住設あんしんサポート 対応物件☆ 最長10年間何度でも利用可能です!! 住宅ローンのご相談も随時受付中です。どのくらいの物件が購入できるのか。 内覧したい物件は購入できるのか。月々のローンはいくらくらいになるのかなど、お気軽にご相談ください♪ ご来店後は商談スペースから見える場所にキッズスペースを用意しております♪ お子様と一緒にご来店ください♪ |
||
こだわり項目
区画整理及び分譲地整形地平坦地緑豊かな住宅地閑静な住宅地前面棟無地盤調査済LDK15帖以上省エネ・エコ住宅BELS/省エネ基準適合(認定書あり)全室2面採光3面採光床下収納吹抜け複層ガラス床暖房食器洗浄機浄水器ガスコンロシステムキッチンカウンターキッチン3口以上コンロトイレ2ヶ所温水洗浄便座シャワー付洗面台浴室乾燥機浴室暖房追焚機能浴室1坪以上浴室に窓オートバス全居室フローリングリビング階段ロフトバリアフリー仕様TVモニタ付インターホンビルトガレージノンホルムアルデヒド24時間換気システム小学校800m以内保育園・幼稚園800m以内公園800m以内陽当り良好通風良好フラット35Sに対応フラット35・S適合証明書
- ※価格は物件の代金総額を表示しており、消費税が課税される場合は税込み価格です。(1,000円未満は切り上げ。)
税率は引き渡し時期により異なりますので、各物件の詳細につきましてはお問い合わせください。 - ※敷地権利が借地権のものは価格に権利金を含みます。
- ※制作中に内容が変更される場合もありますので、あらかじめご了承ください。
- ※購入の前には物件内容や契約条件についてご自身で十分な確認をしていただくようにお願いいたします。
- ※完成予想図はいずれも外構、植栽、外観等実際のものとは多少異なることがあります。
- ※CG合成の画像の場合、実際とは多少異なる場合があります。
周辺地図
周辺施設一覧
- ショッピングセンター
- スーパー
- コンビニ
- ドラッグストア
- ホームセンター
- 飲食店
- その他店舗
- 商店街
- 大学
- 専門学校
- 高校・高専
- 中学校
- 小学校
- 保育園
- 幼稚園
- 公民館・児童館
- 病院
- 郵便局
- 役所
- 図書館
- 金融機関
- 警察・消防
- 趣味・娯楽施設
- 公園・運動施設
- 周辺の街並み
- 駅
- その他
お問い合せ先
- リプラス株式会社
- お電話でのお問い合わせは
0120-76-1177「ホームページを見た」とお問い合わせください - 東京都渋谷区本町3-13-12 渋谷本町ビル 7F
- 営業時間:AM9:00〜PM8:00
- 定休日:毎週水曜日
- 免許番号:東京都知事(1) 第110445号
- 新宿 不動産 TOP
- 新築一戸建てをエリアから探す
- 練馬区
- 貫井
- 2号棟 練馬区貫井3丁目 新築分譲住宅 全2棟








