【弊社限定公開】最終8棟!モデルハウス棟が併設された全14棟が誕生!ワークスペースや和室、WIC、SIC、パントリーなどライフスタイルに合った快適住まいを選べる分譲地。ZEH水準×耐震等級3を取得する高品質な建物
- 5,477万円~6,277万円

- 交 通京王線「調布」駅 バス12分 停歩3分~3分
- 所在地三鷹市大沢1丁目
- 土地面積100.04m²~112.09m²
- 建物面積79.08m²~89.43m²
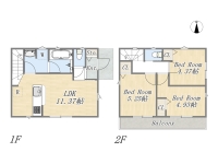
- 間 取3LDK~4SLDK
【弊社限定公開】土日祝日は現地販売会実施中!最終8棟!
京王線「西調布」駅から三鷹市、JR中央線「武蔵境」駅間約5kmを結ぶ「天文台通り」至近に14区画の開発分譲地が誕生!
北側には「東八道路」があるので、都心部や国立エリアへ車移動がスムーズに行き来が可能!
バス停「天文台裏」「大沢台小学校前」が徒歩3分地にあり、「調布」「武蔵境」「三鷹」駅の3駅へのアクセス可能!通勤通学にも便利な立地となっています。
断熱・省エネ性能に優れたZEH水準仕様住宅。設計・建設性能評価書、耐震等級3を取得している優れた住まい。
食洗機付きカウンターキッチンや浴室暖房乾燥機などが備わった住まいで快適な暮らしが叶います。
部屋数・大容量収納など収納数・駐車可能台数など14棟それぞれ独自の特色があるプランニング。
14家族それぞれのライフスタイルに合った新しい暮らしを望めます。
物件周辺はコンビニ徒歩5分、スーパー徒歩8分と行き来しやすい徒歩圏内に買い物施設が点在している住環境。
幼稚園徒歩5分、保育園徒歩7分、小学校徒歩6分、中学校徒歩11分とお子様の送り迎えや通学がしやすい徒歩圏内に教育施設が揃っている子育て世帯も暮らしやすい環境です。
また、「武蔵野の森公園」「野川公園」「神代植物公園」など大人から子どもまで一緒に遊べる大きな公園が点在する緑豊かな立地なので、都会に居ながらも四季折々の自然の中で家族の思い出を作ることが出来ます。
物件詳細や現地ご案内希望など、お気軽にお問い合わせください!
【フリーダイヤル:0120-76-1177】お待ちしております!