- 新宿 不動産 TOP
- 新築一戸建てをエリアから探す
- 板橋区
- 富士見町
- 1号棟 板橋区富士見町 新築分譲住宅 全2棟
新築一戸建て
1号棟 板橋区富士見町 新築分譲住宅 全2棟
情報更新日:2026/04/13 次回更新予定日:2026/04/24
所在地東京都板橋区富士見町39-12[周辺地図]
交 通東武東上線「ときわ台」駅徒歩10分





◆ ◇おすすめPOINT◇ ◆
POINT1. 東武東上線「ときわ台」駅・「中板橋」駅徒歩10分、都営三田線「板橋本町」徒歩13分で利用可能な好立地!
POINT2. 全棟LDK17.8帖以上、2階リビング仕様でプライバシーを確保。2面採光で開放感があります!
POINT3. ビルトインガレージで悪天候でもお車が汚れにくく、移動もよりスムーズになります。
POINT4. コンビに徒歩2分、スーパー徒歩7分と買い物施設が毎日利用しやすい徒歩圏内に点在している暮らしやすい環境。
POINT5. 保育園徒歩5分、幼稚園徒歩8分、小学校徒歩3分、中学校徒歩9分と教育施設がお子様の通学しやすい徒歩圏内に揃っているので子育て世帯も安心の住環境。
◆ ◇ ◆ ◇ ◆ ◇ ◆
各棟の情報をクリックすると詳細や写真をより見ることができます!
POINT1. 東武東上線「ときわ台」駅・「中板橋」駅徒歩10分、都営三田線「板橋本町」徒歩13分で利用可能な好立地!
POINT2. 全棟LDK17.8帖以上、2階リビング仕様でプライバシーを確保。2面採光で開放感があります!
POINT3. ビルトインガレージで悪天候でもお車が汚れにくく、移動もよりスムーズになります。
POINT4. コンビに徒歩2分、スーパー徒歩7分と買い物施設が毎日利用しやすい徒歩圏内に点在している暮らしやすい環境。
POINT5. 保育園徒歩5分、幼稚園徒歩8分、小学校徒歩3分、中学校徒歩9分と教育施設がお子様の通学しやすい徒歩圏内に揃っているので子育て世帯も安心の住環境。
◆ ◇ ◆ ◇ ◆ ◇ ◆
各棟の情報をクリックすると詳細や写真をより見ることができます!
担当スタッフより
- 物件担当より
- 【見学予約受付中】東武東上線「ときわ台」駅など2路線3駅が徒歩13分圏内で利用可能な好立地に新築分譲住宅が全2棟で販売開始!
全棟LDK17.8帖以上の3階建て4部屋プラン、2階リビング仕様でプライバシーを確保。
ウォークインクローゼットやビルトインガレージなどの設備も備わっています。
物件周辺はコンビに徒歩2分、スーパー徒歩7分と買い物施設が毎日利用しやすい徒歩圏内に点在している暮らしやすい環境。
保育園徒歩5分、幼稚園徒歩8分、小学校徒歩3分、中学校徒歩9分と教育施設がお子様の通学しやすい徒歩圏内に揃っているので子育て世帯も安心の住環境。
物件詳細や現地ご案内希望など、お気軽にお問い合わせください!
【本店フリーダイヤル:0120-76-1177】お待ちしております!
各棟情報
物件詳細情報
物件No.20000442804-001
| 所在地 | 東京都板橋区富士見町39-12 | ||
|---|---|---|---|
| 交通 | 東武東上線「ときわ台」駅徒歩10分 東武東上線「中板橋」駅徒歩10分 都営三田線「板橋本町」駅徒歩13分 |
||
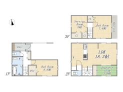
| 間取 | 3SLDK+WIC+ビルトインガレージ (LDK18.3帖、洋室7.6帖、洋室6.6帖、和室3.8帖、S5帖) | ||
| 土地面積 | 61.69m² 実測 | ||
| 建物面積 | 110.85m² 実測 | ||
| 販売戸数 | 2戸 | 総戸数 | 全2戸 |
| 構造・規模 | 木造 3階建て | 築年・入居 | 2026年4月下旬 |
| バルコニー | 東向き | 建物現況 | 建築中 |
| 建築確認番号 | 第KS125-3120-51352号 | 駐車スペース | 1台(車庫) |
| 引渡時期 | 期日指定有(2026年5月下旬) | 地目 | 宅地 |
| 用途地域 | 第一種中高層住居専用地域 | 建ぺい率 | 60% |
| 容積率 | 200% | 都市計画 | 市街化区域 |
| 権利種類 | 所有権 | 接道 | 東側4M道路に接道 |
| 小学校区 | 板橋区立富士見台小学校(230m) | 中学校区 | 板橋区立志村第一中学校(700m) |
| 取引態様 | 媒介 | ||
| 設備 | 公営水道、本下水、都市ガス | ||
| 備考・制限等 | ☆住設あんしんサポート 対応物件☆ 最長10年間何度でも利用可能です!! 住宅ローンのご相談も随時受付中です。どのくらいの物件が購入できるのか。 内覧したい物件は購入できるのか。月々のローンはいくらくらいになるのかなど、お気軽にご相談ください♪ ご来店後は商談スペースから見える場所にキッズスペースを用意しております♪ お子様と一緒にご来店ください♪ |
||
こだわり項目
区画整理及び分譲地整形地平坦地緑豊かな住宅地閑静な住宅地前面棟無地盤調査済LDK15帖以上南向き床下収納全居室収納複層ガラス浄水器省エネ給湯器ガスコンロシステムキッチンカウンターキッチン3口以上コンロトイレ2ヶ所温水洗浄便座シャワー付洗面台浴室乾燥機浴室暖房追焚機能浴室1坪以上浴室に窓オートバスリビング階段ウォークインクローゼットバリアフリー仕様TVモニタ付インターホンビルトガレージノンホルムアルデヒド24時間換気システム小学校800m以内保育園・幼稚園800m以内コンビニ400m以内公園800m以内陽当り良好フラット35Sに対応
- ※価格は物件の代金総額を表示しており、消費税が課税される場合は税込み価格です。(1,000円未満は切り上げ。)
税率は引き渡し時期により異なりますので、各物件の詳細につきましてはお問い合わせください。 - ※敷地権利が借地権のものは価格に権利金を含みます。
- ※制作中に内容が変更される場合もありますので、あらかじめご了承ください。
- ※購入の前には物件内容や契約条件についてご自身で十分な確認をしていただくようにお願いいたします。
- ※完成予想図はいずれも外構、植栽、外観等実際のものとは多少異なることがあります。
- ※CG合成の画像の場合、実際とは多少異なる場合があります。
周辺地図
周辺施設一覧
- ショッピングセンター
- スーパー
- コンビニ
- ドラッグストア
- ホームセンター
- 飲食店
- その他店舗
- 商店街
- 大学
- 専門学校
- 高校・高専
- 中学校
- 小学校
- 保育園
- 幼稚園
- 公民館・児童館
- 病院
- 郵便局
- 役所
- 図書館
- 金融機関
- 警察・消防
- 趣味・娯楽施設
- 公園・運動施設
- 周辺の街並み
- 駅
- その他
お問い合せ先
- リプラス株式会社
- お電話でのお問い合わせは
0120-76-1177「ホームページを見た」とお問い合わせください - 東京都渋谷区本町3-13-12 渋谷本町ビル 7F
- 営業時間:AM9:00〜PM8:00
- 定休日:毎週水曜日
- 免許番号:東京都知事(1) 第110445号
- 新宿 不動産 TOP
- 新築一戸建てをエリアから探す
- 板橋区
- 富士見町
- 1号棟 板橋区富士見町 新築分譲住宅 全2棟









