- 新宿 不動産 TOP
- 新築一戸建てをエリアから探す
- 練馬区
- 大泉学園町
- 練馬区大泉学園町3丁目 新築分譲住宅 全1棟
新築一戸建て

練馬区大泉学園町3丁目 新築分譲住宅 全1棟
情報更新日:2026/02/05 次回更新予定日:2026/02/18
所在地東京都練馬区大泉学園町3丁目[周辺地図]
交 通西武池袋線「大泉学園」駅徒歩24分





◆ ◇おすすめPOINT◇ ◆
POINT1. 西武池袋線「大泉学園」駅利用可!バス停徒歩3分!
POINT2. 南向き角地の住宅!通風&日当たり良好で快適な住空間!
POINT3. 浴室暖房乾燥機をはじめビルトイン食器洗浄機など暮らしを便利にしてくれる豊富な設備!
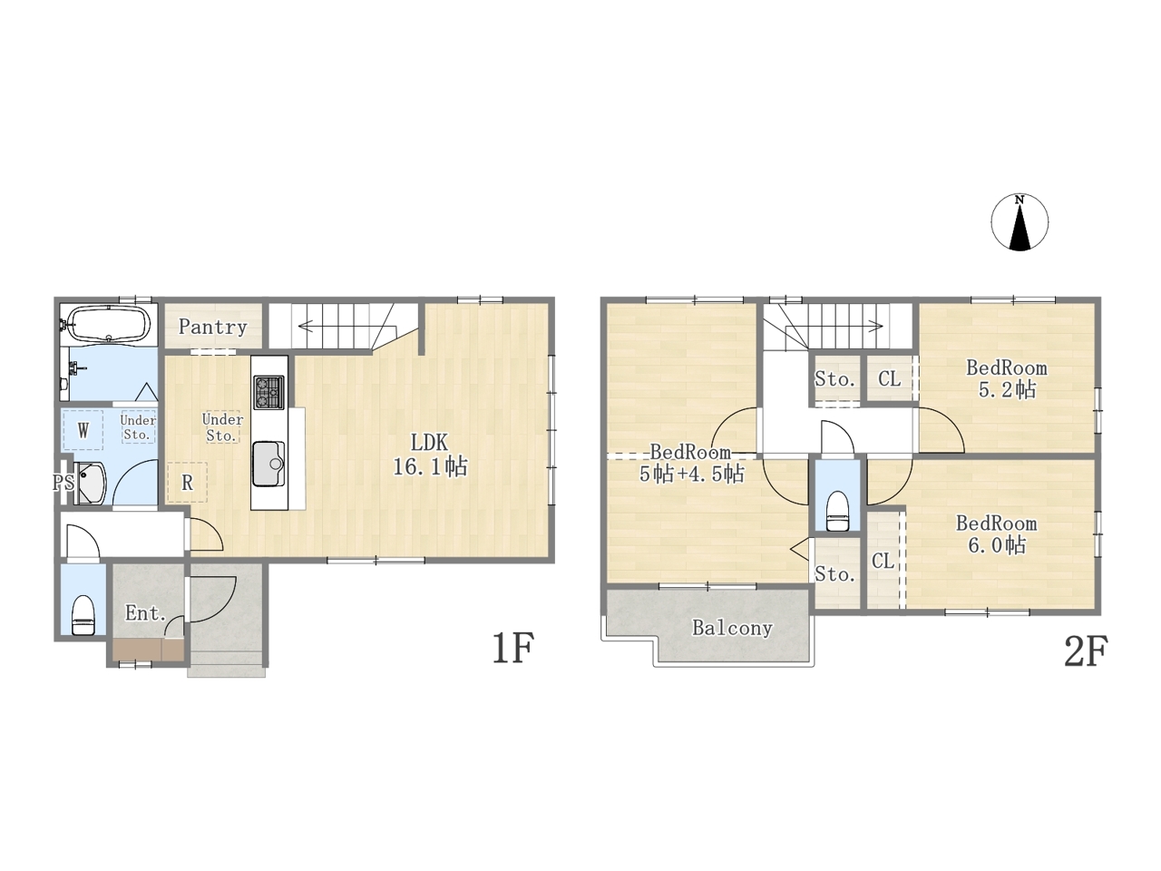
POINT4. 16帖越えのLDKには人気のカウンターキッチン&パントリー!水回りが集約されているので家事同線も◎
◆ ◇ ◆ ◇ ◆ ◇ ◆
POINT1. 西武池袋線「大泉学園」駅利用可!バス停徒歩3分!
POINT2. 南向き角地の住宅!通風&日当たり良好で快適な住空間!
POINT3. 浴室暖房乾燥機をはじめビルトイン食器洗浄機など暮らしを便利にしてくれる豊富な設備!
POINT4. 16帖越えのLDKには人気のカウンターキッチン&パントリー!水回りが集約されているので家事同線も◎
◆ ◇ ◆ ◇ ◆ ◇ ◆
担当スタッフより
- 物件担当より
- 西武池袋線「大泉学園」駅が利用可能な立地!バス停まで徒歩3分!
開放的な南向き角地物件!
浴室暖房乾燥機をはじめビルトイン食器洗浄機など暮らしを便利にしてくれる豊富な設備!
16帖越えのLDKには人気のカウンターキッチン&パントリー!水回りが集約されているので家事同線も◎
物件詳細や現地ご案内希望など、お気軽にお問い合わせください!
【フリーダイヤル:0120-76-1177】お待ちしております!
物件詳細情報
物件No.20000428492
| 所在地 | 東京都練馬区大泉学園町3丁目 | ||
|---|---|---|---|
| 交通 | 西武池袋線「大泉学園」駅徒歩24分 | ||
| 間取 | 3LDK (LDK16.1帖、洋室9.5帖、洋室6帖、洋室5.2帖) | ||
| 土地面積 | 88.74m² 実測 | ||
| 建物面積 | 88.6m² 実測 | ||
| 販売戸数 | 1戸 | 総戸数 | 全1戸 |
| 構造・規模 | 木造 2階建て | 築年・入居 | 2026年1月下旬 |
| バルコニー | 南向き | 建物現況 | 更地 |
| 駐車スペース | あり(カースペース) | 引渡時期 | 相談 |
| 地目 | 宅地 | 用途地域 | 第一種低層住居専用地域 |
| 建ぺい率 | 60% | 容積率 | 100% |
| 都市計画 | 市街化区域 | 権利種類 | 所有権 |
| 接道 | 東側4M公道に接道 南側4M公道に接道 |
小学校区 | 練馬区立第三小学校(240m) |
| 中学校区 | 練馬区立大泉学園中学校(1200m) | 取引態様 | 媒介 |
| 設備 | 公営水道、本下水、都市ガス | ||
| 省エネ性能表示 | エネルギー消費性能:★★★ 断熱性能:5段階 |
||
| 備考・制限等 | ☆住設あんしんサポート 対応物件☆ 最長10年間何度でも利用可能です!! 住宅ローンのご相談も随時受付中です。どのくらいの物件が購入できるのか。 内覧したい物件は購入できるのか。月々のローンはいくらくらいになるのかなど、お気軽にご相談ください♪ ご来店後は商談スペースから見える場所にキッズスペースを用意しております♪ お子様と一緒にご来店ください♪ |
||
こだわり項目
角地整形地平坦地緑豊かな住宅地閑静な住宅地地盤調査済南側道路LDK15帖以上省エネ・エコ住宅南向き全室2面採光3面採光床下収納全居室収納複層ガラス床暖房食器洗浄機浄水器省エネ給湯器ガスコンロシステムキッチンカウンターキッチン3口以上コンロパントリー(食器・食品の収納庫)トイレ2ヶ所温水洗浄便座節水型トイレシャワー付洗面台浴室乾燥機浴室暖房追焚機能浴室1坪以上浴室に窓オートバス全居室フローリングリビング階段バリアフリー仕様TVモニタ付インターホン24時間換気システム小学校800m以内保育園・幼稚園800m以内公園800m以内陽当り良好通風良好フラット35Sに対応
- ※価格は物件の代金総額を表示しており、消費税が課税される場合は税込み価格です。(1,000円未満は切り上げ。)
税率は引き渡し時期により異なりますので、各物件の詳細につきましてはお問い合わせください。 - ※敷地権利が借地権のものは価格に権利金を含みます。
- ※制作中に内容が変更される場合もありますので、あらかじめご了承ください。
- ※購入の前には物件内容や契約条件についてご自身で十分な確認をしていただくようにお願いいたします。
- ※完成予想図はいずれも外構、植栽、外観等実際のものとは多少異なることがあります。
- ※CG合成の画像の場合、実際とは多少異なる場合があります。
周辺地図
周辺施設一覧
- ショッピングセンター
- スーパー
- コンビニ
- ドラッグストア
- ホームセンター
- 飲食店
- その他店舗
- 商店街
- 大学
- 専門学校
- 高校・高専
- 中学校
- 小学校
- 保育園
- 幼稚園
- 公民館・児童館
- 病院
- 郵便局
- 役所
- 図書館
- 金融機関
- 警察・消防
- 趣味・娯楽施設
- 公園・運動施設
- 周辺の街並み
- 駅
- その他
お問い合せ先
- リプラス株式会社
- お電話でのお問い合わせは
0120-76-1177「ホームページを見た」とお問い合わせください - 東京都渋谷区本町3-13-12 渋谷本町ビル 7F
- 営業時間:AM9:00〜PM8:00
- 定休日:毎週水曜日
- 免許番号:東京都知事(1) 第110445号
- 新宿 不動産 TOP
- 新築一戸建てをエリアから探す
- 練馬区
- 大泉学園町
- 練馬区大泉学園町3丁目 新築分譲住宅 全1棟













