- 新宿 不動産 TOP
- 新築一戸建てをエリアから探す
- 府中市
- 日新町
- 府中市日新町5丁目 新築分譲住宅 全10棟
府中市日新町5丁目 新築分譲住宅 全10棟
情報更新日:2025/11/01 次回更新予定日:2025/11/15 取引条件有効期限:2025/11/15
所在地東京都府中市日新町5丁目[周辺地図]
交 通南武線「西府」駅徒歩17分






POINT1. 断熱・省エネ性能に優れた太陽光パネル搭載のZEH水準仕様住宅で快適な暮らし!
POINT2. 設計・建設住宅性能評価書、耐震等級3取得の高仕様な邸宅!
POINT3. 全棟カースペース2台分確保された敷地!LDK16帖超×4部屋の広々とした間取りプラン!
POINT4. 幼稚園徒歩11分、保育園徒歩8分、小学校徒歩7分圏内にあり、共働きの子育て世帯でも安心して暮らせます!
◆ ◇ ◆ ◇ ◆ ◇ ◆
すべての画像
【外観:10月下旬撮影】
【外観:10月下旬撮影】
【外観:10月下旬撮影】
【全体区画図】
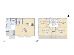
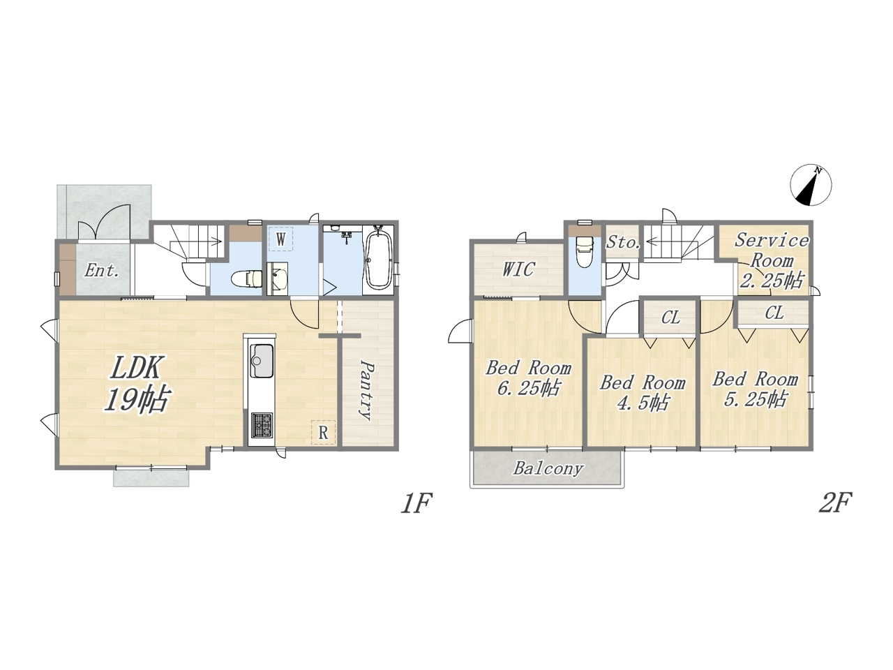
【C号棟】4LDK+SIC+カースペース2台
【D号棟】4LDK+カースペース2台
【E号棟】4LDK+パントリー+カースペース2台
【F号棟】4LDK+パントリー+カースペース2台
【G号棟】4LDK+カースペース2台
【H号棟】4LDK+SIC+カースペース2台
【P号棟】3SLDK+カースペース2台
【Q号棟】3SLDK+パントリー+カースペース2台
【R号棟】4LDK+カースペース2台
【S号棟】3SLDK+カースペース2台
【施工例:LDK】
【施工例:LDK】
【施工例:LDK】
【施工例:Kitchen】
【施工例:Kitchen】
【施工例:Wash Room】
【施工例:Bath Room】
【施工例:Toilet】
【施工例:Room】
【施工例:Room】
【施工例:Room】
【施工例:Entrance】
【外観:10月下旬撮影】
【外観:10月下旬撮影】
【外観:10月下旬撮影】
【外観:10月下旬撮影】
【外観:10月下旬撮影】
【外観:10月下旬撮影】
担当スタッフより
- 物件担当より
- 府中市の閑静な住宅街に全10棟の大型分譲地が誕生!
断熱・省エネ性能に優れた太陽光パネル搭載のZEH水準仕様住宅!
設計・建設住宅性能評価書、耐震等級3取得の高仕様な邸宅で快適な暮らしを叶えます!
全棟カースペース2台分確保されたゆとりある敷地!
LDK16帖超×4部屋の広々とした間取りで水回りが集約されている家事効率を考えられたプランとなっております!
WICやSIC、パントリーなど収納も豊富!
幼稚園徒歩11分、保育園徒歩8分、小学校徒歩7分圏内にあり、共働きの子育て世帯でも安心して暮らせます!
スーパーやコンビニも徒歩12分圏内で、日々のお買い物や休日のまとめ買いなども行き来しやすい距離で便利な住環境です!
物件詳細や現地ご案内希望など、お気軽にお問い合わせください!
【フリーダイヤル:0120-76-1177】お待ちしております!
各棟情報
物件詳細情報
物件No.20000428258
| 所在地 | 東京都府中市日新町5丁目 | ||
|---|---|---|---|
| 交通 | 南武線「西府」駅徒歩17分 南武線「谷保」駅徒歩23分 京王線「分倍河原」駅徒歩34分 |
||
| 間取 | 3SLDK~4LDK+カースペース2台 | ||
| 土地面積 | 110.02m² ~ 118.34m² 実測 | ||
| 建物面積 | 87.35m² ~ 93.57m² 実測 | ||
| 販売戸数 | 10戸 | 総戸数 | 全10戸 |
| 構造・規模 | 木造 2階建て | 築年・入居 | 2026年1月 |
| バルコニー | 南向き | 建物現況 | 建築中 |
| 建築確認番号 | 第HPA-25-000000-1号、他 | 駐車スペース | 2台 |
| 引渡時期 | 相談 | 地目 | 宅地 |
| 用途地域 | 第一種低層住居専用地域 | 建ぺい率 | 40% |
| 容積率 | 80% | 都市計画 | 市街化区域 |
| 権利種類 | 所有権 | 接道 | 東側5M公道に接道 西側5M公道に接道 南側5M公道に接道 北側5M公道に接道 |
| 小学校区 | 府中市立日新小学校(530m) | 中学校区 | 府中市立府中第十中学校(1420m) |
| 取引態様 | 媒介 | ||
| 設備 | 公営水道、本下水、都市ガス | ||
| 備考・制限等 | ☆住設あんしんサポート 対応物件☆ 最長10年間何度でも利用可能です!! 住宅ローンのご相談も随時受付中です。どのくらいの物件が購入できるのか。 内覧したい物件は購入できるのか。月々のローンはいくらくらいになるのかなど、お気軽にご相談ください♪ ご来店後は商談スペースから見える場所にキッズスペースを用意しております♪ お子様と一緒にご来店ください♪ |
||
こだわり項目
- ※価格は物件の代金総額を表示しており、消費税が課税される場合は税込み価格です。(1,000円未満は切り上げ。)
税率は引き渡し時期により異なりますので、各物件の詳細につきましてはお問い合わせください。 - ※敷地権利が借地権のものは価格に権利金を含みます。
- ※制作中に内容が変更される場合もありますので、あらかじめご了承ください。
- ※購入の前には物件内容や契約条件についてご自身で十分な確認をしていただくようにお願いいたします。
- ※完成予想図はいずれも外構、植栽、外観等実際のものとは多少異なることがあります。
- ※CG合成の画像の場合、実際とは多少異なる場合があります。
周辺地図
周辺施設一覧
- ショッピングセンター
- スーパー
- コンビニ
- ドラッグストア
- ホームセンター
- 飲食店
- その他店舗
- 商店街
- 大学
- 専門学校
- 高校・高専
- 中学校
- 小学校
- 保育園
- 幼稚園
- 公民館・児童館
- 病院
- 郵便局
- 役所
- 図書館
- 金融機関
- 警察・消防
- 趣味・娯楽施設
- 公園・運動施設
- 周辺の街並み
- 駅
- その他
お問い合せ先
- リプラス株式会社
- お電話でのお問い合わせは
0120-76-1177「ホームページを見た」とお問い合わせください - 東京都渋谷区本町3-13-12 渋谷本町ビル 7F
- 営業時間:AM9:00〜PM8:00
- 定休日:毎週水曜日
- 免許番号:東京都知事(1) 第110445号
- 新宿 不動産 TOP
- 新築一戸建てをエリアから探す
- 府中市
- 日新町
- 府中市日新町5丁目 新築分譲住宅 全10棟




















