- 新宿 不動産 TOP
- 新築一戸建てをエリアから探す
- 足立区
- 東和
- 足立区東和3丁目 新築分譲住宅 全2棟
新築一戸建て
足立区東和3丁目 新築分譲住宅 全2棟
情報更新日:2025/11/10 次回更新予定日:2025/11/23 取引条件有効期限:2025/11/23
所在地東京都足立区東和3丁目[周辺地図]
交 通東京メトロ千代田線「北綾瀬」駅徒歩13分





◆ ◇おすすめPOINT◇ ◆
POINT1. 断熱・省エネ性能に優れたZEH水準仕様住宅で快適な暮らしを叶えます!
POINT2. 耐震等級を含む7項目が最高等級を取得!地震に強い邸宅となっています!
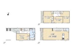
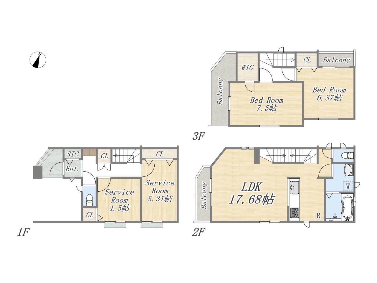
POINT3. 17帖超LDK+4部屋の広々とした間取りプラン!
POINT4. 2面バルコニー仕様で陽当たり・通風良好!心地よい空間を創ります!
◆ ◇ ◆ ◇ ◆ ◇ ◆
POINT1. 断熱・省エネ性能に優れたZEH水準仕様住宅で快適な暮らしを叶えます!
POINT2. 耐震等級を含む7項目が最高等級を取得!地震に強い邸宅となっています!
POINT3. 17帖超LDK+4部屋の広々とした間取りプラン!
POINT4. 2面バルコニー仕様で陽当たり・通風良好!心地よい空間を創ります!
◆ ◇ ◆ ◇ ◆ ◇ ◆
担当スタッフより
- 物件担当より
- 【即日ご案内可能】
東京メトロ千代田線「北綾瀬」駅徒歩13分、JR常磐線「亀有」駅徒歩18分で利用可能な立地!
幼稚園徒歩8分!小学校徒歩17分!中学校徒歩4分!共働きの子育て世帯でも安心して暮らせます!
スーパーやコンビニなど商業施設も徒歩5分圏内にあり、日々のお買い物や休日のまとめ買いなども行き来しやすい距離で便利な住環境です!
物件詳細や現地ご案内希望など、お気軽にお問い合わせください!
【フリーダイヤル:0120-76-1177】お待ちしております!
各棟情報
物件詳細情報
物件No.20000425528
| 所在地 | 東京都足立区東和3丁目 | ||
|---|---|---|---|
| 交通 | 東京メトロ千代田線「北綾瀬」駅徒歩13分 常磐線「亀有」駅徒歩18分 |
||
| 間取 | 2LDK+ビルトインガレージ | ||
| 土地面積 | 70.57m² 実測 | ||
| 建物面積 | 112.55m² 実測 | ||
| 販売戸数 | 1戸 | 総戸数 | 全2戸 |
| 構造・規模 | 木造 3階建て | 築年・入居 | 2025年12月上旬 |
| 建物現況 | 建築中 | 建築確認番号 | 第HPA-25-09318-1号 |
| 駐車スペース | 1台 | 引渡時期 | 相談 |
| 地目 | 宅地 | 用途地域 | 第一種住居地域 |
| 建ぺい率 | 60% | 容積率 | 300% |
| 都市計画 | 市街化区域 | 権利種類 | 所有権 |
| 接道 | 北側6M公道に接道 西側12.3M公道に接道 |
小学校区 | 足立区立東渕江小学校(1300m) |
| 中学校区 | 足立区立蒲原中学校(300m) | 取引態様 | 媒介 |
| 設備 | 公営水道、本下水、都市ガス | ||
| その他制限事項 | 高度地区、準防火地域 | ||
| 備考・制限等 | ☆住設あんしんサポート 対応物件☆ 最長10年間何度でも利用可能です!! 住宅ローンのご相談も随時受付中です。どのくらいの物件が購入できるのか。 内覧したい物件は購入できるのか。月々のローンはいくらくらいになるのかなど、お気軽にご相談ください♪ ご来店後は商談スペースから見える場所にキッズスペースを用意しております♪ お子様と一緒にご来店ください♪ |
||
こだわり項目
始発駅区画整理及び分譲地整形地平坦地緑豊かな住宅地閑静な住宅地前面棟無地盤調査済LDK15帖以上耐震構造省エネ・エコ住宅全室南向き床下収納全居室収納2面以上バルコニー複層ガラス設計住宅性能評価付建設住宅性能評価付(新築時)省エネ給湯器ガスコンロシステムキッチンカウンターキッチン3口以上コンロトイレ2ヶ所温水洗浄便座節水型トイレシャワー付洗面台浴室乾燥機追焚機能浴室1坪以上浴室に窓オートバス全居室フローリングリビング階段バリアフリー仕様TVモニタ付インターホンビルトガレージ24時間換気システム保育園・幼稚園800m以内スーパー400m以内コンビニ400m以内公園800m以内陽当り良好通風良好フラット35Sに対応
- ※価格は物件の代金総額を表示しており、消費税が課税される場合は税込み価格です。(1,000円未満は切り上げ。)
税率は引き渡し時期により異なりますので、各物件の詳細につきましてはお問い合わせください。 - ※敷地権利が借地権のものは価格に権利金を含みます。
- ※制作中に内容が変更される場合もありますので、あらかじめご了承ください。
- ※購入の前には物件内容や契約条件についてご自身で十分な確認をしていただくようにお願いいたします。
- ※完成予想図はいずれも外構、植栽、外観等実際のものとは多少異なることがあります。
- ※CG合成の画像の場合、実際とは多少異なる場合があります。
周辺地図
周辺施設一覧
- ショッピングセンター
- スーパー
- コンビニ
- ドラッグストア
- ホームセンター
- 飲食店
- その他店舗
- 商店街
- 大学
- 専門学校
- 高校・高専
- 中学校
- 小学校
- 保育園
- 幼稚園
- 公民館・児童館
- 病院
- 郵便局
- 役所
- 図書館
- 金融機関
- 警察・消防
- 趣味・娯楽施設
- 公園・運動施設
- 周辺の街並み
- 駅
- その他
お問い合せ先
- リプラス株式会社
- お電話でのお問い合わせは
0120-76-1177「ホームページを見た」とお問い合わせください - 東京都渋谷区本町3-13-12 渋谷本町ビル 7F
- 営業時間:AM9:00〜PM8:00
- 定休日:毎週水曜日
- 免許番号:東京都知事(1) 第110445号
- 新宿 不動産 TOP
- 新築一戸建てをエリアから探す
- 足立区
- 東和
- 足立区東和3丁目 新築分譲住宅 全2棟













