- リプラス株式会社 ホーム
- 大田区東蒲田2丁目 新築分譲住宅 全1棟

【建物完成イメージパース】
京浜急行線「京急蒲田」駅徒歩8分!
JR京浜東北線「蒲田」駅徒歩16分!
2駅利用可能な好立地にZEH水準の新築分譲住宅が限定1棟販売開始!※イメージ画像と実際の物件とは異なる場合がございます。

【一次エネルギー消費量等級6を取得】
省エネ住宅は、快適な居住環境を叶えつつ、地球環境にも優しいのがうれしいポイント。消費エネルギーを抑えることで、地球温暖化の要因となっている二酸化炭素の排出を減らすことができます。

【施工例:LDK】
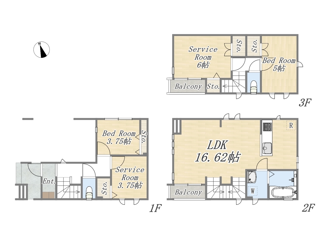
床暖房搭載LDKは16.62帖とゆとりある広さ!
リビング全体を見渡せるカウンターキッチンとリビング階段設計でコミュニケーションを重視したプランニング。

【施工例:Kitchen】
リビング全体を見渡せる食洗機付きカウンターキッチン。
家族と会話を楽しみながら作業が可能です。
- 担当スタッフより


























































全居室収納付きの4部屋プラン!床暖房搭載LDKは16.62帖となっており、採光口が多く陽当たり良好!2階に設置されているので人目を気にせずくつろげる造りとなっています!
リビング階段設計とカウンターキッチンで家族とのコミュニケーションを重視したプランニング。
さらに家事効率向上を考えた水回り集約設計で生活に優しい住宅となっています!
物件周辺はスーパーが徒歩4分と使いやすい距離に買い物施設がある他、保育園徒歩2分・小学校徒歩4分・中学校徒歩3分と教育施設がお子様も通学しやすい徒歩4分圏内に揃っている子育て世帯でも住みやすい環境となっています!